Token ile Konutun Yeni Çağı.

NexBloc
2+1
608 NexToken Beta
Orta Gelir Grubuna Yönelik Konut
Tuzla, İstanbul, Türkiye
Yapım: 2024-2025
-
Projenin durumu: İnşaat çalışmaları başlamış olup, mevcut tamamlanma oranı %68,46'dır.
Üyelik gerektirir
Token Birim Fiyatı:
10.000 TL'den başlayan fiyatlarla
Kar payı: 444,1 TL (yıl/2025)
NEXTOKEN BETA AL & SAT
MetaMask Cüzdan &
Üyelik gerektirir
TOKEN TABANLI YENİ NESİL YATIRIM"
Teknik Bilgiler
NexBloc projesinde, 20 adet 2+1 konut bulunmaktadır. 10 adedi arsa sahibine teslim edilecek olup, diğer 10 adet 2+1 konutlar satışa sunulmuştur.
Salon - 21.30 m2
Mutfak - 8.76 m2
Ebv. Yatak Odası -14.05 m2 & Ebv. Banyo - 2.79 m2
Yatak Odası - 8.22 m2
Balkon - 1.95 m2
Bina Yüksekliği: 10 Kat
2 Asansör
Yangın Merdiveni
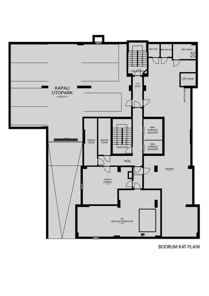
18 Araçlık Kapalı Otopark (182,02 m2)
Bodrum:
Sığınak (140,21 m2)
Su Deposu & Hidrofor
Kazan dairesi
Görselleştirmeler, Yapı Bilgi Modellemesi (Revit) kullanılarak üretilmiştir (Nazlı DÖNGEZ)
Yapım Süreci

Finansal Detaylar
NexToken Beta, projede 2+1 konut birimlerinin yapım finansmanını karşılamak üzere, farklı türde yatırımcılara sunulmak üzere üretilmiştir.
NexToken Beta, 2+1 kiralık konut birimlerinin dijital pay temsilidir.
Projede yatırımcıların aldığı NexToken Beta'ya, ilgili konut birimlerinden toplanan kira gelirlerinin %88'i, yıl sonunda kar payı olarak dağıtılmaktadır. NexToken Beta alımı ile konut biriminin mülkiyeti, parçalı olarak blokzincir üzerindeki akıllı sözleşmelere tanımlanarak alıcılara verilmektedir.
NexToken Beta, proje başlangıcı olan 2024 yılında kamuoyuna sunulmuştur.
Geliştirici firma ve danışmanlar ile yapılan finansal değerlendirmeler sonucunda, 2+1 konut biriminin fiyatı 608 NexToken Beta olarak belirlenmiştir.
NexToken Beta'nın başlangıç birim fiyatı 10.000 TL olup, yıl sonuna kadar aylık TÜFE oranında artış yapılmaktadır. Sonraki yıl için NexToken Beta'nın birim fiyatı, kira fiyatına bağlı olarak değiştirilmesi planlanmıştır. Bu şartlar, blokzincirde üretilen akıllı sözleşmelerde belirtilmiştir.
Geliştirici firmaya finansman aktarımları, SPK ve TUBİTAK denetiminde gerçekleşmektedir.

"Token Yatırımında Güven:
MetaMask Güvencesiyle"

NEXTOKEN BETA AL & SAT
NexToken Alpha & Konut Kredisi ?














